REQUEST A TOUR If you would like to see this home without being there in person, select the "Virtual Tour" option and your agent will contact you to discuss available opportunities.
In-PersonVirtual Tour

$ 725,000
Est. payment | /mo
3,900 SqFt
$ 725,000
Est. payment | /mo
3,900 SqFt
Key Details
Property Type Commercial
Sub Type Multi Family
Listing Status Active
Purchase Type For Sale
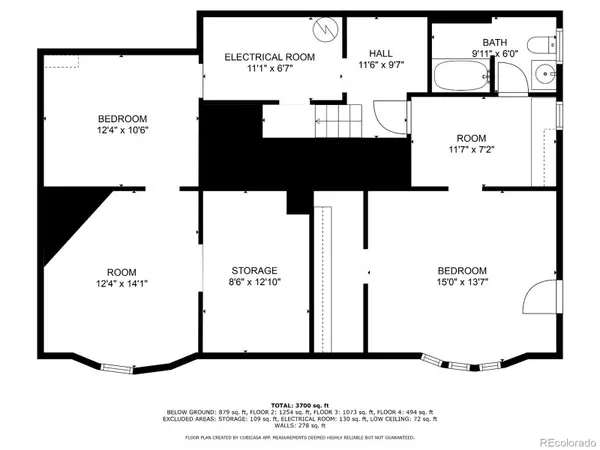
Square Footage 3,900 sqft
Price per Sqft $185
MLS Listing ID 9768573
Style Victorian
HOA Y/N No
Year Built 1900
Annual Tax Amount $6,232
Tax Year 2024
Lot Size 7,254 Sqft
Acres 0.17
Property Sub-Type Multi Family
Source recolorado
Property Description
Redevelopment or major rehab opportunity in a prime Denver location! 1632 York Street offers C-MX-5 zoning, providing incredible flexibility for future use — whether you're envisioning a boutique hotel, hostel, office space, or multifamily redevelopment (buyer to verify use and density). This property is not within a historic district, opening the door for a wide range of design and construction possibilities.
IMPORTAN NOTICE: The property has tested positive for methamphetamine contamination and is being sold strictly as-is. No access is permitted except to licensed meth remediation professionals. Buyers are encouraged to perform all due diligence regarding environmental cleanup, structure, and redevelopment feasibility prior to submitting an offer.
Nestled between City Park, Uptown, and the rapidly evolving Colfax commercial corridor, this site sits at the crossroads of some of Denver's most dynamic growth. Once remediation and redevelopment are complete, the potential for income and impact here is substantial.
Property sold as-is. Seller will not make repairs or provide access beyond approved remediation protocol. Contact Listing Agent for more photos and a video walkthrough. ALL OFFERS WILL BE CONSIDERED Contact listing agent for more photos and videos.
IMPORTAN NOTICE: The property has tested positive for methamphetamine contamination and is being sold strictly as-is. No access is permitted except to licensed meth remediation professionals. Buyers are encouraged to perform all due diligence regarding environmental cleanup, structure, and redevelopment feasibility prior to submitting an offer.
Nestled between City Park, Uptown, and the rapidly evolving Colfax commercial corridor, this site sits at the crossroads of some of Denver's most dynamic growth. Once remediation and redevelopment are complete, the potential for income and impact here is substantial.
Property sold as-is. Seller will not make repairs or provide access beyond approved remediation protocol. Contact Listing Agent for more photos and a video walkthrough. ALL OFFERS WILL BE CONSIDERED Contact listing agent for more photos and videos.
Location
State CO
County Denver
Zoning C-MX-5
Interior
Fireplace N
Exterior
Exterior Feature Balcony, Garden
Parking Features Asphalt, Concrete
Garage Spaces 2.0
Roof Type Shingle
Total Parking Spaces 6
Garage No
Building
Sewer Public Sewer
Water Public
Structure Type Brick,Concrete,Frame,Stone
Others
Acceptable Financing Cash, Conventional
Listing Terms Cash, Conventional

© 2025 METROLIST, INC., DBA RECOLORADO® – All Rights Reserved
6455 S. Yosemite St., Suite 500 Greenwood Village, CO 80111 USA
6455 S. Yosemite St., Suite 500 Greenwood Village, CO 80111 USA
Listed by Coldwell Banker Realty 24
GET MORE INFORMATION

Angelina Martinez
REALTOR® | Lic# 100087112






